Malville >
Grande Maison De Campagne Renovee Avec Parking Et Espace Detente - Fr-1-306-1303 Malville
Grande Maison De Campagne Renovee Avec Parking Et Espace Detente - Fr-1-306-1303
Preview only — see all hotel photos
See all 34 photos 1 /
34
Best options for your travel dates
Vis hotel på kort
Grande Maison De Campagne Renovee Avec Parking Et Espace Detente - Fr-1-306-1303
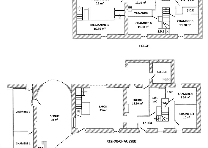
Denne villa tilbyder indkvartering 10 minutters kørsel fra Monument de la Reddition. Der er også 6 værelser og 6 badeværelser.
Feriehus er placeret 30 km til Saint-Nazaire.
Hver enhed tilbyder et fuldt udstyret køkken og en terrasse. Gæsterne vil nyde haven udsigt fra værelset.
En række aktiviteter, som bordtennis tilbydes i området.
Mere +
Mindre -
Vent venligst, vi tjekker tilgængelige værelser til dig.
Vi søger hoteller
Faciliteter
Hovedfunktioner
- WiFi
- Aktiviteter
- Spa og afslapning
- Kæledyr ikke tilladt
Faciliteter
General:
- Rygning forbudt på alle fælles- og privatområder
- Wi-Fi
- Parkering
- Kæledyr ikke tilladt
Sport og Fritid:
- Have
- Jacuzzi
- Bordtennis
Politik
Indtjekning: fra 16:00 indtil 17:30
Udtjekning: fra 09:00 indtil 10:00
Kort
Lokale seværdigheder
Lufthavne
- St. Nazaire Montoir Lufthavn (30 km)